4 Terraced Houses in Zejtun
€ 575,000
Description
Choice of 4 Terraced houses
Newly build 3 Bedroom Terraced House located in a UCA area of this sought after Location Zejtun (TAX exempt).
The house will be sold in shell form and it will be built by the end of December 2026.
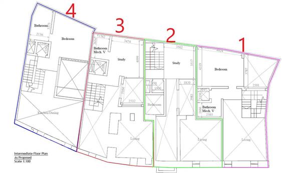
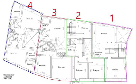
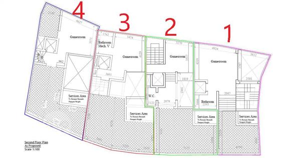
Consisting of a large welcoming hall, living room sep kitchen/ dining, bathroom and a 7sqm internal yard on ground floor level, a large study room on the Intermediate level, 3 double bedrooms on 1st floor level and a Gamesroom / Laundry room with a bathroom and large roof terrace very ideal to entertaine.
Complimenting this Property is a 2 / 3 Cars basement Garage with a lift shaft serving all floors.
On plan marked 2.
€575,000 Freehold
Viewing is a must.
Contact 99496088
Newly build 3 Bedroom Terraced House located in a UCA area of this sought after Location Zejtun (TAX exempt).
The house will be sold in shell form and it will be built by the end of December 2026.
Consisting of a large welcoming hall, living room sep kitchen/ dining, bathroom and a 7sqm internal yard on ground floor level, a large study room on the Intermediate level, 3 double bedrooms on 1st floor level and a Gamesroom / Laundry room with a bathroom and large roof terrace very ideal to entertaine.
Complimenting this Property is a 2 / 3 Cars basement Garage with a lift shaft serving all floors.
On plan marked 2.
€575,000 Freehold
Viewing is a must.
Contact 99496088
Other Details
Terraced HouseZejtunShell
3YesNo
Item Details
9953227
486
Property For Sale
01/08/2025
Featured Listings
GHARGHUR - 10 room HOC set on 300sqm in UCA
For Sale
House of character3Gharghur
Mellieha Heights New Development, Ready Built, Sold Finished including bathrooms!!
For Sale
Apartment / Flat3Mellieha
FOR SALE 3-Bedroom Apartment - Xaghra, Gozo
For Sale
Apartment / Flat3Xaghra (Gozo)
For sale - Unconverted House with large garden and guaranteed valley views in Kercem Gozo
For Sale
House of character5Kercem (Gozo)
