For Sale - Plot with Approved Permit in Xewkija, Gozo
€ 360,000
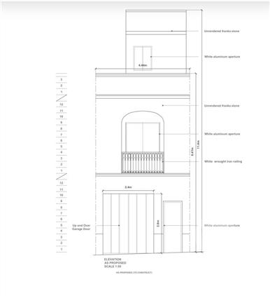
Description
An excellent opportunity to acquire a plot with approved permit located in the charming village of Xewkija, one of the most sought-after residential areas in Gozo.
Xewkija is known for its peaceful atmosphere, traditional character, and central location, making it ideal for both residents and investors. The village offers easy access to Victoria and other parts of the island while still enjoying a quiet community lifestyle. One of the Gozo’s most iconic landmarks.
Features:-
* Plot with approved permit
* Ideal for building a family home or investment property.
* Located in a tranquil yet well-connected area
Price: €360,000 (ONO)
For Viewing and more Info Call or WhatsApp 99281084
Xewkija is known for its peaceful atmosphere, traditional character, and central location, making it ideal for both residents and investors. The village offers easy access to Victoria and other parts of the island while still enjoying a quiet community lifestyle. One of the Gozo’s most iconic landmarks.
Features:-
* Plot with approved permit
* Ideal for building a family home or investment property.
* Located in a tranquil yet well-connected area
Price: €360,000 (ONO)
For Viewing and more Info Call or WhatsApp 99281084
Other Details
PlotXewkija (Gozo)Site/Land
Not ApplicableYesNo
Item Details
10026119
537
Property For Sale
11/03/2026
Featured Listings
!!WANTED!! PLOTS / SITES & HOUSES TO DEVELOP. CASH IN HAND!!
For Sale
Terraced House3Zurrieq
For sale 8000 m2 land with Seaview in xlendi gozo
For Sale
Land (ODZ)Xlendi (Gozo)
Warehouse/ garage/ office in Spinola road St. Julian’s
For Sale
IndustrialSan Giljan
For Sale Terraced house with large garden and Valley Views in Munxar Gozo
For Sale
House of character4Munxar (Gozo)