Naxxar site for development - make a great family home
€ 395,000
Description
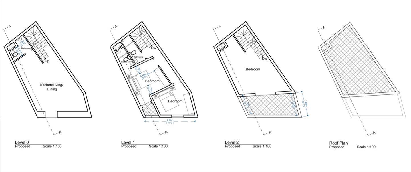
Site in Naxxar, with permits having a 3 bedroom and street level or basement garage, one can amend the plans to make it to you desire, call now to own a home and making your dream into reality. price is 395k AGENT
Other Details
PlotNaxxarShell
3NoNo
Item Details
10039257
77
Property For Sale
28/04/2026
Featured Listings
!!WANTED!! PLOTS / SITES & HOUSES TO DEVELOP. CASH IN HAND!!
For Sale
Terraced House3Zurrieq
For Sale - Farmhouse with Luxury Potential in Sannat, Gozo
For Sale
Detached Villa6Sannat
For Sale - 3 Bedroom House with Pool & Sea Views in Zebbug, Gozo
For Sale
House of character3Zebbug (Gozo)
For Sale 3 bdr furnsihed Apartment with Terrace in Sannat Gozo
For Sale
Apartment / Flat3Sannat
