Haz Zebbug - 3 Bedroom Penthouse
€ 458,000
Description
Haz Zebbug - 3 Bedroom Penthouse
-Situated in one of best areas in Haz Zebbug,
-Block of only 4 units.
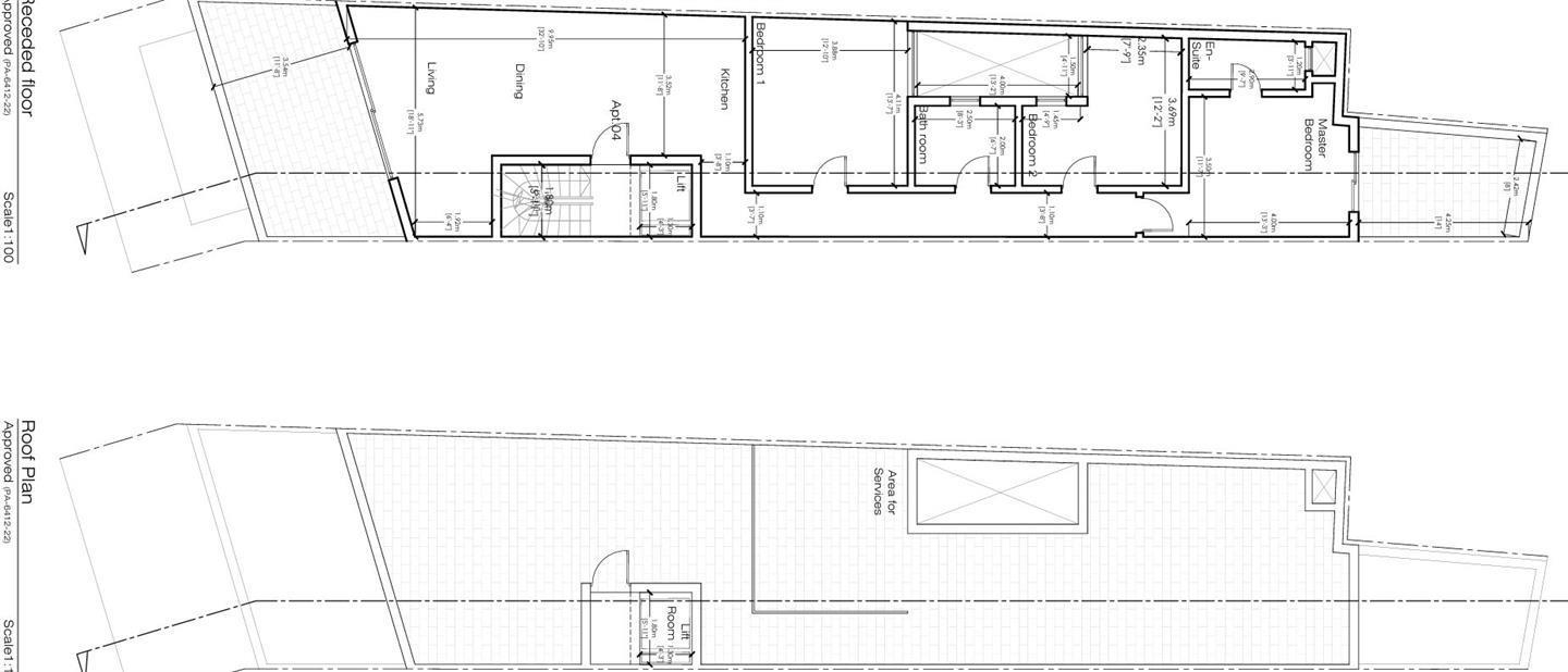
This Property Consists - An Open plan,Kitchen/Living&Diining area with a good size Front Balcony , Main Bathroom, 3 Bedroom,Main with unsiute & Back Terrance .
-Air Space included .
-Finished without Bathrooms & internal Doors .
- Free Hold 458k
Optional garageS
For Viewing Call on 79888936 ( WhatsApp avilable )
Visit & Like Our Face Book Page Kevin Sensar .
-Situated in one of best areas in Haz Zebbug,
-Block of only 4 units.
This Property Consists - An Open plan,Kitchen/Living&Diining area with a good size Front Balcony , Main Bathroom, 3 Bedroom,Main with unsiute & Back Terrance .
-Air Space included .
-Finished without Bathrooms & internal Doors .
- Free Hold 458k
Optional garageS
For Viewing Call on 79888936 ( WhatsApp avilable )
Visit & Like Our Face Book Page Kevin Sensar .
Other Details
PenthouseZebbug (Malta)Finished
3YesNo
Item Details
9985826
173
Property For Sale
06/11/2025
Featured Listings
Mosta – Large Townhouse with 350sqm Garden in UCA
For Sale
Apartment / Flat3Mosta
Rabat Townhouse
For Sale
House of character3Rabat (Malta)
Naxxar a Charming Townhouse with Possibility of garage
For Sale
House of character2Naxxar
House of Character in Attard
For Sale
House of character3Attard
