Haz Zebbug - 3 Bedroom Penthouse -
€ 458,000
Description
Haz Zebbug - 3 Bedroom Penthouse
-Situated in one of best areas in Haz Zebbug,
-Block of only 4 units.
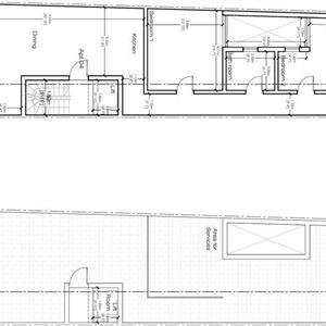
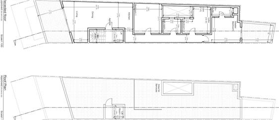
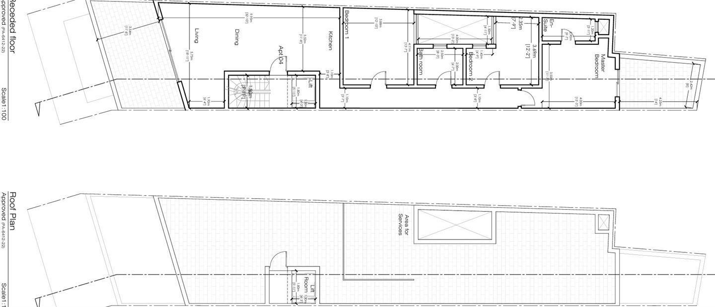
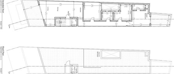
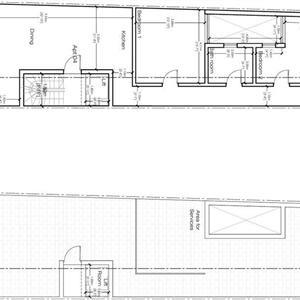
This Property Consists - An Open plan,Kitchen/Living&Diining area with a good size Front Balcony , Main Bathroom, 3 Bedroom,Main with unsiute & Back Terrance .
-Air Space included .
-Finished without Bathrooms & internal Doors .
- Free Hold 458k
Optional garageS
For Viewing Call on 79888936 ( WhatsApp avilable )
Visit & Like Our Face Book Page Kevin Sensar .
-Situated in one of best areas in Haz Zebbug,
-Block of only 4 units.
This Property Consists - An Open plan,Kitchen/Living&Diining area with a good size Front Balcony , Main Bathroom, 3 Bedroom,Main with unsiute & Back Terrance .
-Air Space included .
-Finished without Bathrooms & internal Doors .
- Free Hold 458k
Optional garageS
For Viewing Call on 79888936 ( WhatsApp avilable )
Visit & Like Our Face Book Page Kevin Sensar .
Other Details
PenthouseZebbug (Malta)Finished
3NoNo
Item Details
9982175
305
Property For Sale
28/10/2025
Featured Listings
ZURRIEQ 3 BEDROOM APARTMENT FULLY FURNISHED READY TO MOVE IN.
For Sale
Apartment / Flat3Zurrieq
NO AGENTS - DIRECT FROM OWNER - FULLY FURNISHED FIRST FLOOR APARTMENT IN MOSTA FOR SALE
For Sale
Apartment / Flat3Mosta
For Sale 3 Bdr House in the Heart of Victoria, Gozo
For Sale
Terraced House3Rabat (Gozo)
Town House for Sale
For Sale
Other3Paola
