Zurrieq semi finished 2 bedroom apartment - 2nd floor
€ 275,000
Description
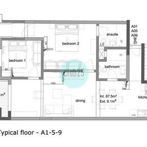
ZURRIEQ - Step into this beautifully designed 2-bedroom Apartment offered in a highly finished state, excluding bathrooms and internal doors. Construction is underway, with completion expected by June 2026.
The layout features an entrance hall that leads to a spacious, open-plan kitchen, living, and dining area, all of which are connected to a front terrace. The main bathroom has space for a bathtub, while the main double bedroom enjoys an ensuite bathroom and a private balcony. A second double bedroom completes the layout.
Accessible via a lift, the unit forms part of a block of 18 units spread across 5 floors.
The layout features an entrance hall that leads to a spacious, open-plan kitchen, living, and dining area, all of which are connected to a front terrace. The main bathroom has space for a bathtub, while the main double bedroom enjoys an ensuite bathroom and a private balcony. A second double bedroom completes the layout.
Accessible via a lift, the unit forms part of a block of 18 units spread across 5 floors.
Other Details
Apartment / FlatZurrieqSemi-Finished
2NoNo
Item Details
9976838
352
Property For Sale
15/10/2025
Featured Listings
NO AGENTS - DIRECT FROM OWNER - FULLY FURNISHED FIRST FLOOR APARTMENT IN MOSTA FOR SALE
For Sale
Apartment / Flat3Mosta
Sea View Penthouse Marsaxlokk
For Sale
Penthouse2Marsaxlokk
Ta' Farsina, Qormi - Spacious 2 Bedroom and 2 Bathroom Apartments
For Sale
Apartment / Flat2Qormi
WANTED HOUSES PLOT SITES FOR DEVELOPMENT CASH IN HAND
For Sale
Terraced HouseZejtun
