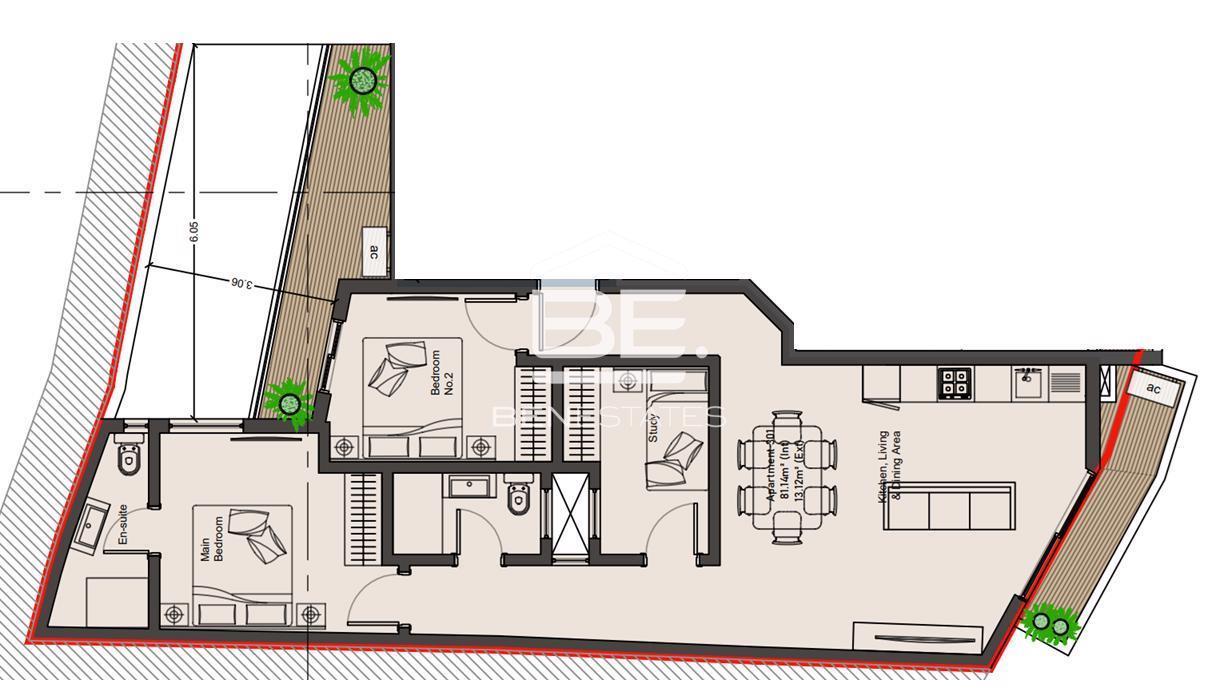
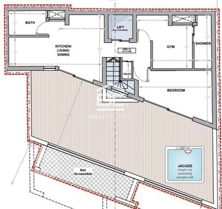
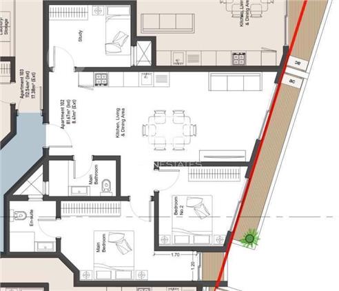
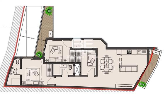
PAOLA NEW DEVELOPMENT PRICES STARTING FROM JUST €230,000
€ 230,000
Description
PAOLA NEW DEVELOPMENT
PRICES STARTING FROM JUST €230,000
CALL - - 9943 6781
PRICES STARTING FROM JUST €230,000
CALL - - 9943 6781
Item Details
9972190
48
Everything Else
01/10/2025
New
