This website uses cookies. By using this website you agree to our terms. This website uses cookies, learn more
add listing

St. Paul's Bay - 3 bedroom Apartment - Ready built + Half Airspace

€ 290,000

Description

Is this really a broker (sensar) ?

This advertiser has indicated that they are a broker (sensar) charging 1% commission. If this is incorrect, let us know.

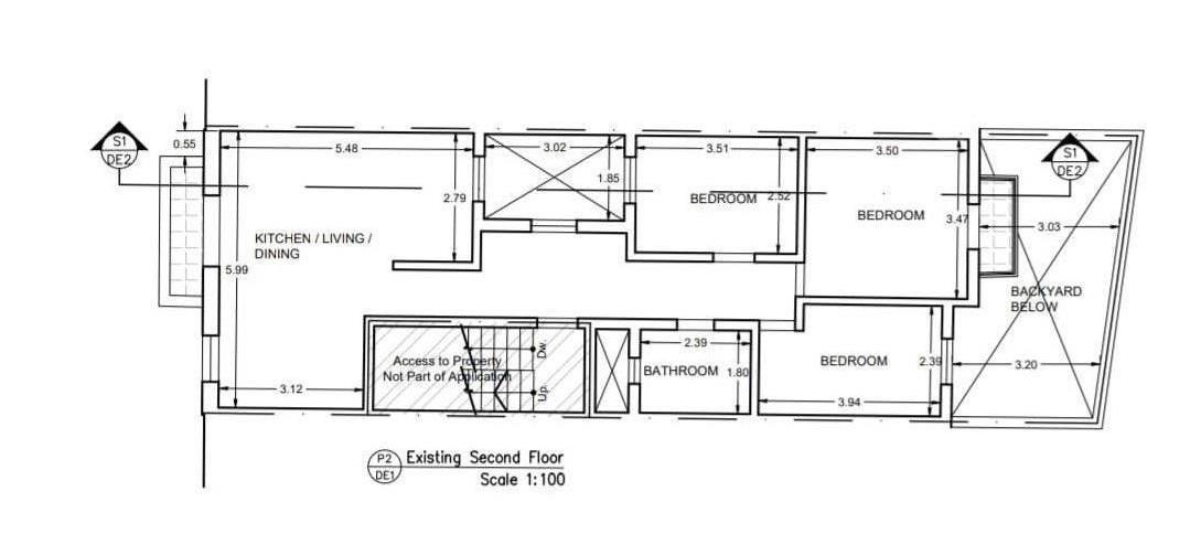
Second floor apartment being offered finished. Layout consists of an open plan kitchen/living/dining with front balcony, three bedrooms, bathroom and back balcony. Included with this property is the undivided use of roof and half ownership of airspace. No lift. Ideal as a rental investment or as a residential unit. Freehold.

Other Details

Apartment / FlatSan Pawl il-BaharFurnished
3NoNo

Item Details

9961638
554
Property For Sale
27/08/2025

Featured Listings

sell faster!

make your listing featured and get 10x more viewers

more
  FEEDBACK