4 Terraced houses in Zejtun
€ 490,000
Description
Terraced houses
Newly build 3 Bedroom Terraced House located in a UCA area of this sought after Location Zejtun (TAX exempt).
The house will be sold in shell form and it will be built by the end of December 2026.
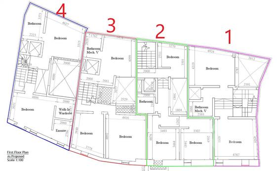
Consisting of a large welcoming hall, living room sep kitchen/ dining with a pantry, bathroom and an 8sqm internal yard on ground floor level, a large study room with a bathroom on the Intermediate level, 3 double bedrooms main with an ensuite on 1st floor level and
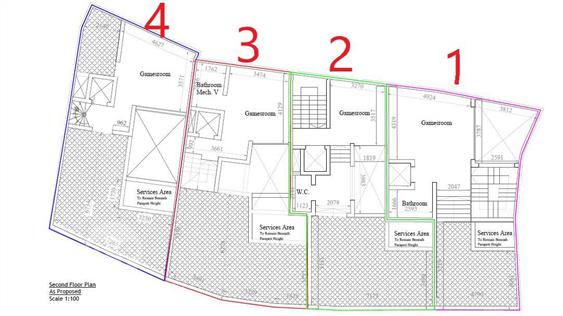
a Gamesroom / Laundry room with a bathroom and large roof terrace very ideal to entertaine.
Complimenting this Property is a good sized basement ideal as a GYM / Gamesroom / Men cave etc with a shower room and a lift shaft serving all floors.
On plan marked 3.
€490,000 Freehold
Viewing is a must.
Contact 99496088
Newly build 3 Bedroom Terraced House located in a UCA area of this sought after Location Zejtun (TAX exempt).
The house will be sold in shell form and it will be built by the end of December 2026.
Consisting of a large welcoming hall, living room sep kitchen/ dining with a pantry, bathroom and an 8sqm internal yard on ground floor level, a large study room with a bathroom on the Intermediate level, 3 double bedrooms main with an ensuite on 1st floor level and
a Gamesroom / Laundry room with a bathroom and large roof terrace very ideal to entertaine.
Complimenting this Property is a good sized basement ideal as a GYM / Gamesroom / Men cave etc with a shower room and a lift shaft serving all floors.
On plan marked 3.
€490,000 Freehold
Viewing is a must.
Contact 99496088
Other Details
Terraced HouseZejtunShell
3YesNo
Item Details
9953224
548
Property For Sale
01/08/2025
Featured Listings
FOR SALE 3-Bedroom Apartment - Xaghra, Gozo
For Sale
Apartment / Flat3Xaghra (Gozo)
Mellieha Heights New Development, Ready Built, Sold Finished including bathrooms!!
For Sale
Apartment / Flat3Mellieha
GHARGHUR - 10 room HOC set on 300sqm in UCA
For Sale
House of character3Gharghur
For Sale 3 bdr furnsihed Apartment with Terrace in Sannat Gozo
For Sale
Apartment / Flat3Sannat
