4 Terraced Houses in Zejtun
€ 525,000
Description
Choice of 4 Terraced houses
Newly build 3 Bedroom Terraced House located in a UCA area of this sought after Location Zejtun (TAX exempt).
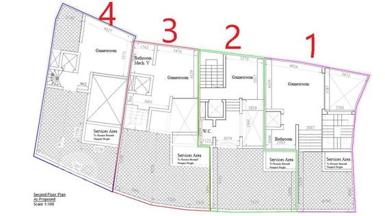
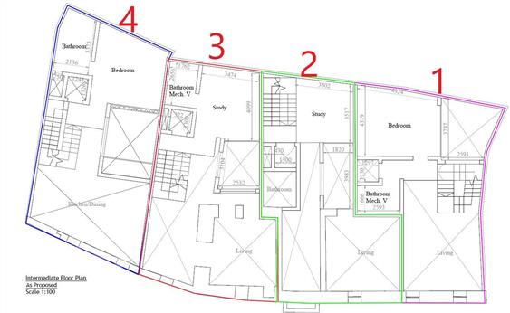
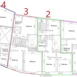
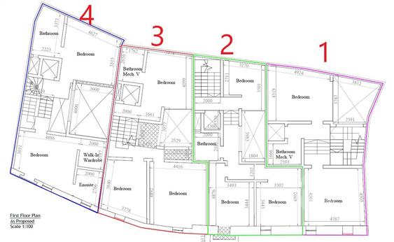
The house will be sold in shell form and it will be built by the end of December 2026. Consisting of a living / dining upon entrance, sep kitchen/ dining with a pantry, bathroom and a 14sqm internal yard on ground floor level, a double bedroom with a bathroom ensuite on Intermediate floorm, on 1st floor one finds 2 double bedrooms both with an ensuite and walk in wardrobe and a Gamesroom / Laundry room with a large roof terrace very ideal to entertaine.
Complimenting this Property is a large basement ideal as a GYM / Gamesroom / Men cave etc with a shower room and a lift shaft serving all floors.
On plan marked 4.
€525,000 Freehold
Viewing is a must.
Contact 99496088
Newly build 3 Bedroom Terraced House located in a UCA area of this sought after Location Zejtun (TAX exempt).
The house will be sold in shell form and it will be built by the end of December 2026. Consisting of a living / dining upon entrance, sep kitchen/ dining with a pantry, bathroom and a 14sqm internal yard on ground floor level, a double bedroom with a bathroom ensuite on Intermediate floorm, on 1st floor one finds 2 double bedrooms both with an ensuite and walk in wardrobe and a Gamesroom / Laundry room with a large roof terrace very ideal to entertaine.
Complimenting this Property is a large basement ideal as a GYM / Gamesroom / Men cave etc with a shower room and a lift shaft serving all floors.
On plan marked 4.
€525,000 Freehold
Viewing is a must.
Contact 99496088
Other Details
Terraced HouseZejtunShell
3YesNo
Item Details
9953222
299
Property For Sale
01/08/2025
Featured Listings
WANTED - GARAGE TARXIEN
For Sale
GarageTarxien
3 Bed Fully Furnished Penthouse with ODZ Views
For Sale
Penthouse3Zabbar
Elevated Street level 3 car Garage, Qawra, 45feet, 7inches.
For Sale
Garage1Qawra
NO AGENTS - DIRECT FROM OWNER - FULLY FURNISHED FIRST FLOOR APARTMENT IN MOSTA FOR SALE
For Sale
Apartment / Flat3Mosta
