Tarxien - 249sqm Maisonette with large backyard
€ 430,000
Description
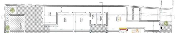
Spacious 3-Bedroom Maisonette in Tarxien with large backyard
A rare find in a prime location!
This 249sqm maisonette boasts a generous layout, including 3 bedrooms and 82 sqm of outdoor space, perfect for entertaining
Being sold finished (excluding bathrooms and internal doors), it offers a fantastic opportunity to customize to your style.
Optional garages available.
Price €430,000 neg
For viewings or more information, contact 79310597.
A rare find in a prime location!
This 249sqm maisonette boasts a generous layout, including 3 bedrooms and 82 sqm of outdoor space, perfect for entertaining
Being sold finished (excluding bathrooms and internal doors), it offers a fantastic opportunity to customize to your style.
Optional garages available.
Price €430,000 neg
For viewings or more information, contact 79310597.
Other Details
MaisonetteTarxienSemi-Finished
3YesYes
Item Details
9870288
701
Property For Sale
26/01/2025
Featured Listings
Elevated Street level 3 car Garage, Qawra, 45feet, 7inches.
For Sale
Garage1Qawra
NO AGENTS - DIRECT FROM OWNER - FULLY FURNISHED FIRST FLOOR APARTMENT IN MOSTA FOR SALE
For Sale
Apartment / Flat3Mosta
For Sale Massive Semi-Basment hall in Marsalforn Gozo
For Sale
Business Outlet or ShopMarsalforn (Gozo)
For Sale wide Fronted Terraced house with garden ( 380 m2 total site area }
For Sale
Terraced House5Sannat