Mqabba - 2 bedroom Maisonette
€ 248,000
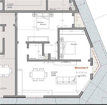
Description
Mqabba - For Sale -2 bedroom Maisonette
This property is being sold on plan and in shell form with common parts completed.
* 2 bedrooms
* Excellent location
* Freehold
* New Block
Price €248,000
For further details kindly contact me on Tel 79310597.
This property is being sold on plan and in shell form with common parts completed.
* 2 bedrooms
* Excellent location
* Freehold
* New Block
Price €248,000
For further details kindly contact me on Tel 79310597.
Other Details
MaisonetteMqabbaShell
2Not ApplicableNo
Item Details
9865251
1107
Property For Sale
10/01/2025
Featured Listings
Elevated Street level 3 car Garage, Qawra, 45feet, 7inches.
For Sale
Garage1Qawra
For sale 2/3bdr Corner Apartment in Xlendi gozo near sea
For Sale
Apartment / Flat2Xlendi (Gozo)
Large Duplex Solitary Maisonette – Mellieha
For Sale
Maisonette3Mellieha
#SantaVenera | NEW ON THE MARKET | Semi-Furnished 3-Bedroom Penthouse with Terraces & Optional Garag...
For Sale
Penthouse3Santa Venera