1 Car Garage - 17.5 SQM - Triq l-skola Fgura - Water and Electricity - street level
€ 74,000
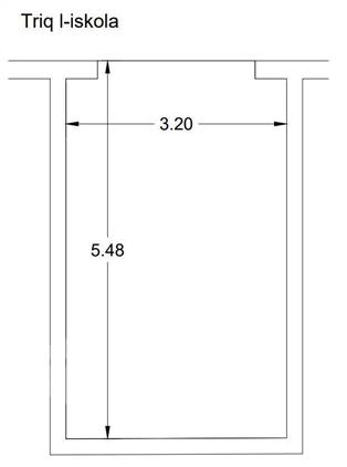
Description
1 Car Garage
17.5 SQM
Triq l-skola Fgura
Water and Electricity
street level
17.5 SQM
Triq l-skola Fgura
Water and Electricity
street level
Other Details
GarageFguraFinished
Not ApplicableNot ApplicableNo
Item Details
9855719
1127
Property For Sale
08/12/2024
Featured Listings
Maisonette - 3 Bedroom / 3 Bathrooms - Hamrun/Pieta
For Sale
Maisonette3Pieta'
!!WANTED!! PLOTS / SITES & HOUSES TO DEVELOP. CASH IN HAND!!
For Sale
Terraced House3Zurrieq
WANTED HOUSES PLOT SITES FOR DEVELOPMENT CASH IN HAND
For Sale
Terraced HouseZejtun
BALZAN --- VERY LARGE 3 BEDROOM APARTMENT --- DIRECT FROM OWNER
For Sale
Apartment / Flat3Balzan
