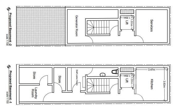
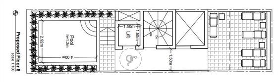
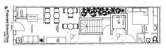
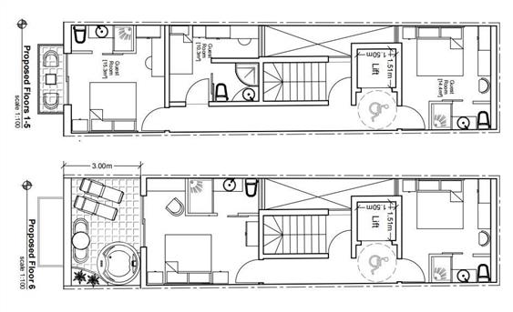
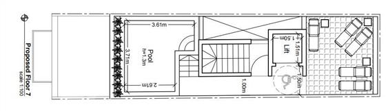
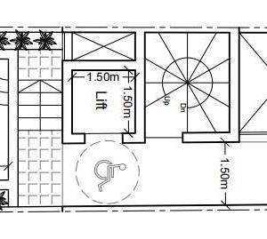
BOUTIQUE HOTEL ST JULIANS BORDER ( 8 FLOORS ) ( 15 ROOMS + TOILETS ) WITH POOL
€ 1,000
Description
BOUTIQUE HOTEL ST JULIANS BORDER ( 8 FLOORS ) ( 15 ROOMS + TOILETS ) WITH POOL
OR
8 FLOORS COMMERCIAL PLUS OFFICES & or SHOPS
BARTERING CONSIDERED
MOBILE : +356 79450124
OWNER
OR
8 FLOORS COMMERCIAL PLUS OFFICES & or SHOPS
BARTERING CONSIDERED
MOBILE : +356 79450124
OWNER
Other Details
Other CommercialSan GiljanFurnished
Not ApplicableNoYes
Item Details
9677763
1926
Property For Sale
02/11/2023
Featured Listings
San Gwann 3 Bedroom Apartment! €305.000
For Sale
Apartment / Flat3San Gwann
?? DESIGNER-FINISHED 2-BEDROOM APARTMENT • FREEHOLD • QUIET AREA ?? DIRECT FROM OWNER – €345,000 • H...
For Sale
Apartment / Flat2Luqa
Townhouse Rabat Malta
For Sale
Terraced House3Rabat (Malta)
WANTED HOUSES PLOT SITES FOR DEVELOPMENT CASH IN HAND
For Sale
Terraced HouseZejtun