DIRECT FROM OWNER - APARTMENT FOR SALE
€ 198,000
Description
🔷️🔶️️🔷️ BARGAIN 🔶️🔷️🔶️
🎈🎈🎈DIRECT FROM OWNER 🎈🎈🎈
2 BEDROOM APARTMENT For Sale in Ghajnsielem
Approx 100m2
Apartment is situated in first floor level in the heart of Ghajnsielem, behind Church/Main Square and 5 mins away from Gozo Ferry.
Apartment is served with lift.
Block consists of 8 units only.
Block is situated in a very quite residential area, opposite to an open wide street leading to Ghajnsielem Main Square and close to all amenities.
Having:
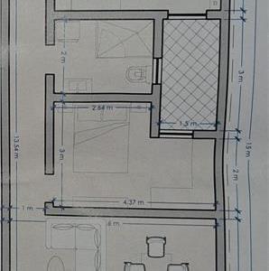
♦️Main bedroom: 4.4m x 3m
♦️Spare bedroom: 4.3m x 3m
♦️Bathroom: 2.7m x 2m
♦️Extra Domestic Room which can be converted into an Ensuite in Main Bedroom: 1.5m x 1.5m
♦️Internal yard: 3m x 1.5m
♦️Kitchen/Living/Dining: 5.8m x 5.4m
♦️Front Balcony: 5m x 2m (approx)
Property is offered in Shell Form and is currently under construction
Completion of Apartment by mid 2027
Common parts and lift are included in the price
Packages for finishings of apartment are also available upon request
⛔️ NO AGENTS PLEASE ⛔️
Only serious buyers please, no time wasters!!!
⚠️⚠️⚠️ Phone 79204176 ⚠️⚠️⚠️
🎈🎈🎈DIRECT FROM OWNER 🎈🎈🎈
2 BEDROOM APARTMENT For Sale in Ghajnsielem
Approx 100m2
Apartment is situated in first floor level in the heart of Ghajnsielem, behind Church/Main Square and 5 mins away from Gozo Ferry.
Apartment is served with lift.
Block consists of 8 units only.
Block is situated in a very quite residential area, opposite to an open wide street leading to Ghajnsielem Main Square and close to all amenities.
Having:
♦️Main bedroom: 4.4m x 3m
♦️Spare bedroom: 4.3m x 3m
♦️Bathroom: 2.7m x 2m
♦️Extra Domestic Room which can be converted into an Ensuite in Main Bedroom: 1.5m x 1.5m
♦️Internal yard: 3m x 1.5m
♦️Kitchen/Living/Dining: 5.8m x 5.4m
♦️Front Balcony: 5m x 2m (approx)
Property is offered in Shell Form and is currently under construction
Completion of Apartment by mid 2027
Common parts and lift are included in the price
Packages for finishings of apartment are also available upon request
⛔️ NO AGENTS PLEASE ⛔️
Only serious buyers please, no time wasters!!!
⚠️⚠️⚠️ Phone 79204176 ⚠️⚠️⚠️
Other Details
Apartment / FlatGhajnsielem (Gozo)Shell
2YesNo
Item Details
10037425
48
Property For Sale
21/04/2026
Featured Listings
DEVELOPERS BUYING ALL PROPERTY TYPES | OWN A PROPERTY ? WE PAY MORE.
For Sale
OtherZejtun
WANTED HOUSES PLOT SITES FOR DEVELOPMENT CASH IN HAND
For Sale
Terraced HouseZejtun
Sliema Seafront 2 bedroom Apartment
For Sale
Apartment / Flat2Sliema
Marsaxlokk Terraced house
For Sale
Terraced House3Sliema