3 bedrooms Penthouse in Kercem
€ 265,000
Description
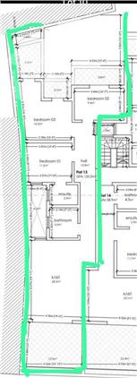
3 bedroom 2 Bathrooms Penthouse located in a tranquil location in Kercem Gozo, property is being sold in shell (stone) Freehold inc air space
Property Build
Price inc common parts and lift
Contact me for viewing no agents please
Property Build
Price inc common parts and lift
Contact me for viewing no agents please
Other Details
PenthouseKercem (Gozo)Shell
3NoNo
Item Details
10037410
18
Property For Sale
20/04/2026
Featured Listings
DEVELOPERS BUYING ALL PROPERTY TYPES | OWN A PROPERTY ? WE PAY MORE.
For Sale
OtherZejtun
Marsaxlokk Terraced house
For Sale
Terraced House3Sliema
WANTED HOUSES PLOT SITES FOR DEVELOPMENT CASH IN HAND
For Sale
Terraced HouseZejtun
Sliema Seafront 2 bedroom Apartment
For Sale
Apartment / Flat2Sliema