New on the Market – Penthouse in Qormi!
€ 480,000
Description
🚨 New on the Market – Penthouse in Qormi! 🚨
Don’t miss this opportunity to own a spacious 3-bedroom penthouse
with massive outdoor space in a quiet area!
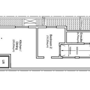
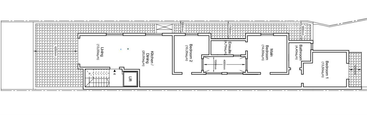
✔️ Open-plan kitchen/living/dining,
✔️ 3 double bedrooms (all with terrace access),
✔️ En-suite + main bathroom,
✔️ Large front, side & back terraces,
✔️ Freehold + full airspace,
💰 €480,000,
🚗 Garage Optional,
📞 Call NOW: 79888936,
⏳ Won’t stay long on the market!
Visit and Like our Face Book Page , Living Spaces Sensar 1%
Other Details
PenthouseZebbug (Malta)Finished
3NoNo
Item Details
10036170
50
Property For Sale
16/04/2026
Featured Listings
HAMRUN 2/3 BEDROOM TOWNHOUSE
For Sale
Terraced House3Hamrun
DUPLEX - RABAT
For Sale
Apartment / Flat3Rabat (Malta)
Maisonette and garage in Hamrun
For Sale
Maisonette3Hamrun
For sale - Unconverted House with large garden and guaranteed valley views in Kercem Gozo
For Sale
House of character5Kercem (Gozo)
