M xlokk corner plot 200 sqm with permits in hand
€ 960,000
Description
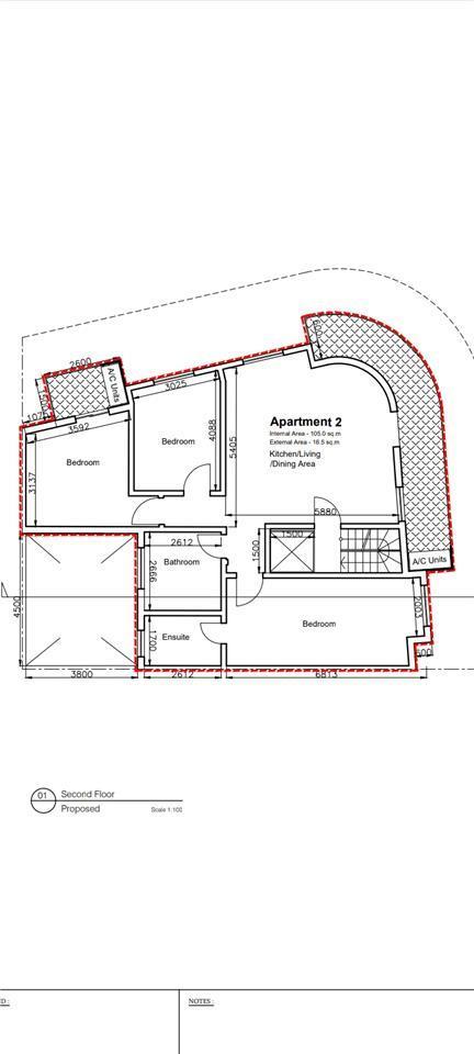
M xlokk corner plot with permits in hand for child care,2 apartments 3 bedroom each and 3 bedroom duplex penthouse
Other Details
PlotMarsaxlokkSite/Land
Not ApplicableYesNo
Item Details
10029013
34
Property For Sale
21/03/2026
Featured Listings
DEVELOPERS BUYING ALL PROPERTY TYPES | OWN A PROPERTY ? WE PAY MORE.
For Sale
OtherZejtun
Penthouse Birkirkara - FURNISHED
For Sale
Penthouse2Birkirkara
!!WANTED!! PLOTS / SITES & HOUSES TO DEVELOP. CASH IN HAND!!
For Sale
Terraced House3Zurrieq
WANTED HOUSES PLOT SITES FOR DEVELOPMENT CASH IN HAND
For Sale
Terraced HouseZejtun
