For Sale - Apartments & Garages for Sale – Xewkija Gozo
€ 270,000
Description
An exclusive new residential development offering several luxury apartments and private garages in the charming village of Xewkija, Gozo.
These thoughtfully designed residences feature bright and spacious open-plan kitchen, living and dining areas that lead onto front terraces or balconies, creating a comfortable space for everyday living and entertaining. The apartments are designed with practical layouts, natural light, and modern finishes throughout.
Each apartment includes:
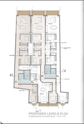
• Spacious open-plan Kitchen / Living / Dining area
• 2–3 Bedrooms including main bedroom with en-suite
• Main bathroom and well-planned circulation spaces
• Front balconies or terraces for outdoor living
• Large windows allowing plenty of natural light
• Modern layout designed for comfort and functionality
The development also offers luxury penthouses with larger living areas and spacious terraces, ideal for enjoying open views and outdoor relaxation.
Additional features include:
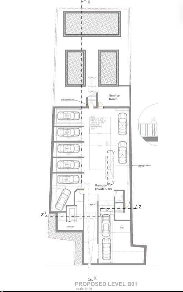
• Private garage spaces available
• Lift access serving all floors
• Modern residential design
• Shared outdoor area with swimming pools creating a resort-style environment for residents.
Situated in a quiet residential area in Xewkija , this development is close to daily amenities while offering privacy and comfort.
An excellent opportunity for a luxury residence, holiday home, or investment in Gozo.
Prices Starting from for Apartments- €270000 + cp €15000 and Garage Prices from - €30000 + cp €3000 (ONO)
For more Info Call or WhatsApp on 99281084
These thoughtfully designed residences feature bright and spacious open-plan kitchen, living and dining areas that lead onto front terraces or balconies, creating a comfortable space for everyday living and entertaining. The apartments are designed with practical layouts, natural light, and modern finishes throughout.
Each apartment includes:
• Spacious open-plan Kitchen / Living / Dining area
• 2–3 Bedrooms including main bedroom with en-suite
• Main bathroom and well-planned circulation spaces
• Front balconies or terraces for outdoor living
• Large windows allowing plenty of natural light
• Modern layout designed for comfort and functionality
The development also offers luxury penthouses with larger living areas and spacious terraces, ideal for enjoying open views and outdoor relaxation.
Additional features include:
• Private garage spaces available
• Lift access serving all floors
• Modern residential design
• Shared outdoor area with swimming pools creating a resort-style environment for residents.
Situated in a quiet residential area in Xewkija , this development is close to daily amenities while offering privacy and comfort.
An excellent opportunity for a luxury residence, holiday home, or investment in Gozo.
Prices Starting from for Apartments- €270000 + cp €15000 and Garage Prices from - €30000 + cp €3000 (ONO)
For more Info Call or WhatsApp on 99281084
Other Details
Apartment / FlatXewkija (Gozo)Site/Land
3YesYes
Item Details
10026698
375
Property For Sale
13/03/2026
Featured Listings
!!WANTED!! PLOTS / SITES & HOUSES TO DEVELOP. CASH IN HAND!!
For Sale
Terraced House3Zurrieq
HAMRUN 2/3 BEDROOM TOWNHOUSE
For Sale
Terraced House3Hamrun
For Sale 5 Odz land in different areas in Qala Gozo
For Sale
Land (ODZ)Qala (Gozo)
For Sale 2 bd Semi detached maisonette with terrace and own entrance in Xlendi Bay
For Sale
Maisonette2Xlendi (Gozo)