lija 3 bedroom new penthouse with views
€ 580,000
Description
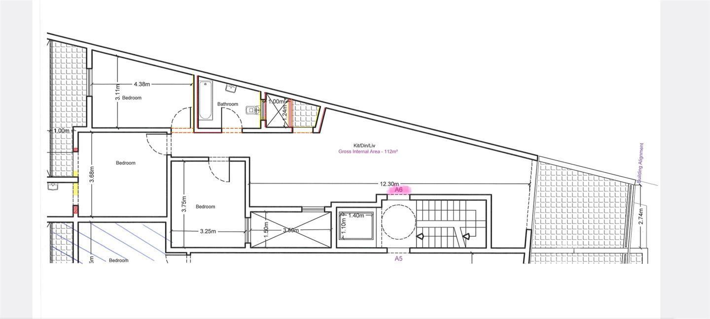
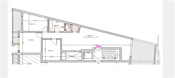
Lija 3 bedroom new penthouse have good size open plan,bathroom,ensuite,own airspace and nice terraces with views. This penthouse is ready fully finished including doors,bathrooms and lift with optional garage at 55 k
Other Details
PenthouseLijaFinished
3YesNo
Item Details
10024595
42
Property For Sale
06/03/2026
Featured Listings
Town House Mqabba with Garden of 350sqm
For Sale
House of character4Mqabba
DEVELOPERS BUYING ALL PROPERTY TYPES | OWN A PROPERTY ? WE PAY MORE.
For Sale
OtherZejtun
Bugibba . Perfect location . Directly from the owner
For Sale
Apartment / Flat2San Pawl il-Bahar
!!WANTED!! PLOTS / SITES & HOUSES TO DEVELOP. CASH IN HAND!!
For Sale
Terraced House3Zurrieq
