1 bedroom Apartment in bugibba
€ 249,000
Description
Smart Investment in the Heart of Bugibba – 1 Bedroom On-Plan Apartment.
A fantastic opportunity to secure a modern 1-bedroom apartment on plan in one of Bugibba’s most sought-after locations. Situated just moments away from the seafront promenade, vibrant restaurants, cafés, and Bugibba Square, this property offers the perfect blend of coastal living and urban convenience.
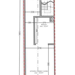
Designed with comfort and practicality in mind, the layout will feature a bright open-plan kitchen, living and dining area, a double bedroom, and a contemporary bathroom. Ideal as a rental investment, holiday home, or first-time buyer opportunity, this apartment promises excellent future value in a high-demand area.
Being sold on plan, you benefit from: • Brand-new finishes
• Modern design
• Energy-efficient build
• The potential for strong rental returns
💰 Negotiable price – making this an even more attractive opportunity for serious buyers.
Whether you're looking to invest in a prime rental hotspot or secure your own coastal retreat, this property ticks all the right boxes.
📍 Prime location
🏖 Walking distance to the seafront
🍽 Surrounded by amenities
📈 Strong investment potential
-
Get in touch today for more details and plans. Opportunities in this area move fast!
Give us a call or Watsup 9989031 or 99449022
A fantastic opportunity to secure a modern 1-bedroom apartment on plan in one of Bugibba’s most sought-after locations. Situated just moments away from the seafront promenade, vibrant restaurants, cafés, and Bugibba Square, this property offers the perfect blend of coastal living and urban convenience.
Designed with comfort and practicality in mind, the layout will feature a bright open-plan kitchen, living and dining area, a double bedroom, and a contemporary bathroom. Ideal as a rental investment, holiday home, or first-time buyer opportunity, this apartment promises excellent future value in a high-demand area.
Being sold on plan, you benefit from: • Brand-new finishes
• Modern design
• Energy-efficient build
• The potential for strong rental returns
💰 Negotiable price – making this an even more attractive opportunity for serious buyers.
Whether you're looking to invest in a prime rental hotspot or secure your own coastal retreat, this property ticks all the right boxes.
📍 Prime location
🏖 Walking distance to the seafront
🍽 Surrounded by amenities
📈 Strong investment potential
-
Get in touch today for more details and plans. Opportunities in this area move fast!
Give us a call or Watsup 9989031 or 99449022
Other Details
Apartment / FlatBugibbaFinished
1NoNo
Item Details
10021384
16
Property For Sale
24/02/2026
Featured Listings
Direct from Owner – Stunning New Apartments in Zabbar
For Sale
Apartment / Flat2Zabbar
WANTED HOUSES PLOT SITES FOR DEVELOPMENT CASH IN HAND
For Sale
Terraced HouseZejtun
Bugibba . Perfect location . Directly from the owner
For Sale
Apartment / Flat2Bugibba
