Birkirkara - 145sqm - 3 Bedrooms 2 Baths
€ 355,000
Description
Apartment for Sale – Central Birkirkara
💰 €355,000
🤝 Direct from owner – no agency fees
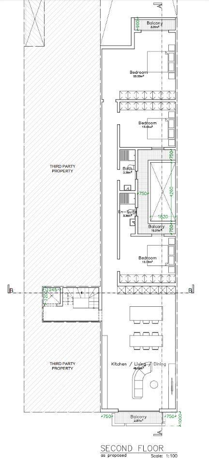
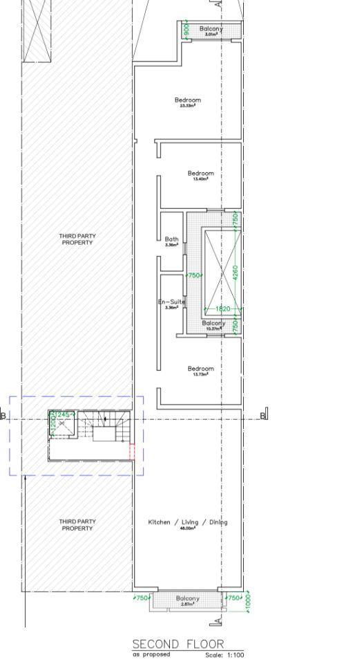
Approx. 145sqm apartment in a prime central location.
✨ Construction has started, with the building planned to be in shell form by May 2026. The property is being sold finished excluding bathrooms and doors, allowing for personalisation.
✨ Features include:
• 🛏️ 3 double bedrooms
• 🍽️ 45sqm open-plan kitchen/ living/ dining
• 🌞 Front & rear balconies
• 🧺 Very practical internal balcony, ideal for laundry, storage or utility use, providing additional light and ventilation
• 🚿 2 bathrooms (possibility of a 3rd)
• 🛗 Second floor, served with lift
📍 Close to all amenities, including grocery shops, bakery, vegetable & convenience shops, bus stops, and a playing field, all within walking distance.
💬 Price slightly negotiable
📩 PM or Call on 99572180 for more details
💰 €355,000
🤝 Direct from owner – no agency fees
Approx. 145sqm apartment in a prime central location.
✨ Construction has started, with the building planned to be in shell form by May 2026. The property is being sold finished excluding bathrooms and doors, allowing for personalisation.
✨ Features include:
• 🛏️ 3 double bedrooms
• 🍽️ 45sqm open-plan kitchen/ living/ dining
• 🌞 Front & rear balconies
• 🧺 Very practical internal balcony, ideal for laundry, storage or utility use, providing additional light and ventilation
• 🚿 2 bathrooms (possibility of a 3rd)
• 🛗 Second floor, served with lift
📍 Close to all amenities, including grocery shops, bakery, vegetable & convenience shops, bus stops, and a playing field, all within walking distance.
💬 Price slightly negotiable
📩 PM or Call on 99572180 for more details
Other Details
Apartment / FlatBirkirkaraSemi-Finished
3NoNo
Item Details
10018092
34
Property For Sale
12/02/2026
Featured Listings
NO AGENTS - Penthouse Bugibba 2 bedrooms
For Sale
Penthouse2Bugibba
Mosta
For Sale
Apartment / Flat3Mosta
Siggiewi Apartment. OWNER!
For Sale
Apartment / Flat2Siggiewi
For Sale 5 Odz land in different areas in Qala Gozo
For Sale
Land (ODZ)Qala (Gozo)