QORMI - PENTHOUSE
€ 480,000
Description
QORMI - PENTHOUSE
-Quiet residential
-Finished (excluding bathrooms & doors)
- Airspace
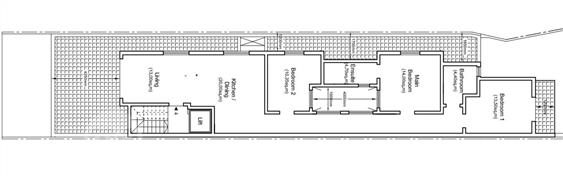
This Property Consists -
-Open Plan Kitchen/Living &Dinning area .
-3 Double Bedrooms – all with terrace Main with Unsuite.
-Main Bathroom .
-Side ,Front& Back Terrance.
- Airspace.
- Free Hold 480k.
- Optinal 2 Car Garage .
For Viewing call on 79888936 .( Whats App Avilable ).
Visit and Like our Face Book Page , Living Spaces Sensara 1%.
-Quiet residential
-Finished (excluding bathrooms & doors)
- Airspace
This Property Consists -
-Open Plan Kitchen/Living &Dinning area .
-3 Double Bedrooms – all with terrace Main with Unsuite.
-Main Bathroom .
-Side ,Front& Back Terrance.
- Airspace.
- Free Hold 480k.
- Optinal 2 Car Garage .
For Viewing call on 79888936 .( Whats App Avilable ).
Visit and Like our Face Book Page , Living Spaces Sensara 1%.
Other Details
PenthouseSiggiewiFinished
3YesNo
Item Details
10013236
246
Property For Sale
26/01/2026
Featured Listings
Farmhouse in St Paul's Bay
For Sale
Other4San Pawl il-Bahar
Mellieha Heights New Development, Ready Built, Sold Finished including bathrooms!!
For Sale
Apartment / Flat3Mellieha
GHARGHUR - 10 room HOC set on 300sqm in UCA
For Sale
House of character3Gharghur
MSIDA Corner Apartments - Sole Agency with Zanzi Homes - Ideal for first time buyers or as a rental...
For Sale
Apartment / Flat1Msida
