Marsascala - Duplex Penthosue with Views
€ 368,000
Description
For Sale - Marsascala Duplex Penthouse
The property is being sold fully finished, including Bathroom and internal doors.
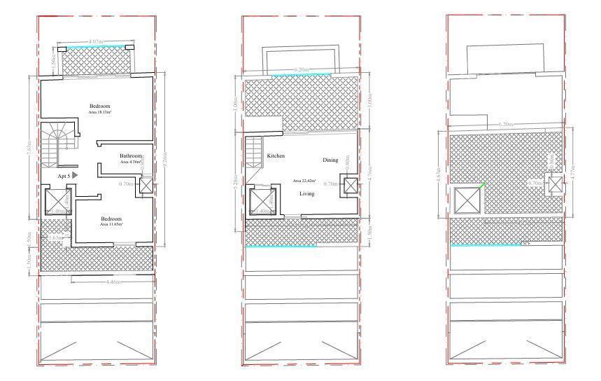
The property consists of:-
2 bedrooms
Main Bathroom
and the Kitchen/Living is on the top floor facing a front spacious terrace with views.
Back Balcony
Each floor is also accessible by means of a Lift.
Price €368,000
For viewings, please contact Tel 79310597
The property is being sold fully finished, including Bathroom and internal doors.
The property consists of:-
2 bedrooms
Main Bathroom
and the Kitchen/Living is on the top floor facing a front spacious terrace with views.
Back Balcony
Each floor is also accessible by means of a Lift.
Price €368,000
For viewings, please contact Tel 79310597
Other Details
PenthouseMarsascalaFinished
2YesNo
Item Details
10012723
31
Property For Sale
24/01/2026
Featured Listings
Mellieha Unconverted House of Character
For Sale
House of character2Mellieha
2 Units to be sold at a special price . Direct from the developer
For Sale
Apartment / Flat2Bugibba
DEVELOPERS BUYING ALL PROPERTY TYPES | OWN A PROPERTY ? WE PAY MORE.
For Sale
OtherZejtun
Zejtun Apartments FOR SALE - NEW DEVELOPMENT
For Sale
Apartment / Flat3Zejtun