Rabat Virtu Detached Villa
€ 1,600,000
Description
Still on Plan
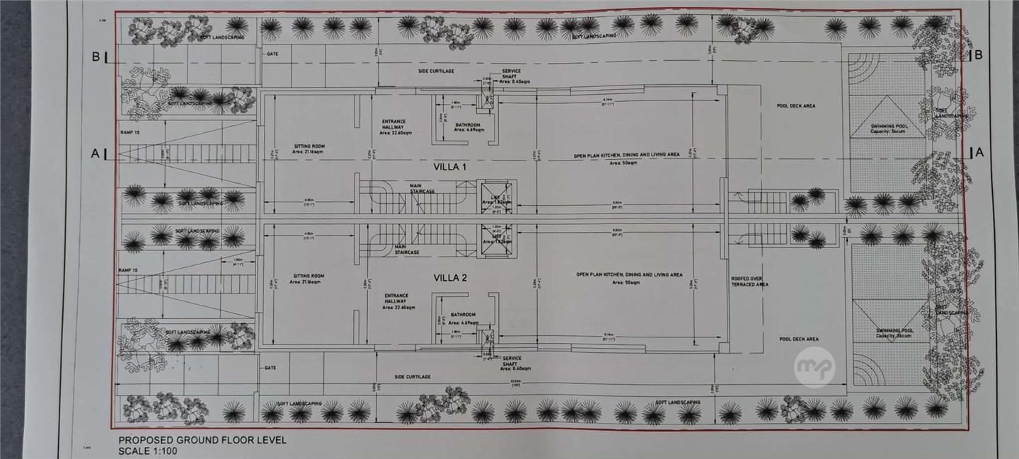
New on the market is this Semi detached Villa situated in this Prestige Location of Virtu. Being sold in shell form and built on a Plot of 340sqm. Having the accommodation of an entrance hallway, sitting room, bathroom a 50sqm openplan overlooking approx 80sqm of outdoor space with pool, entertaining area etc. On first floor level one finds a hallway / study area, 3 double bedrooms main with a walk in and ensuite and other with a walk in and a Family bathroom. On roof level finds a good sized washroom.
Complimenting this Property is an interconnecting semi basement Garage meas 192sqm with a lift shaft that serves up to roof level.
€1,600,000 Freehold
Contact 99496088
New on the market is this Semi detached Villa situated in this Prestige Location of Virtu. Being sold in shell form and built on a Plot of 340sqm. Having the accommodation of an entrance hallway, sitting room, bathroom a 50sqm openplan overlooking approx 80sqm of outdoor space with pool, entertaining area etc. On first floor level one finds a hallway / study area, 3 double bedrooms main with a walk in and ensuite and other with a walk in and a Family bathroom. On roof level finds a good sized washroom.
Complimenting this Property is an interconnecting semi basement Garage meas 192sqm with a lift shaft that serves up to roof level.
€1,600,000 Freehold
Contact 99496088
Other Details
Semi-Detached VillaRabat (Malta)Shell
3YesYes
Item Details
10010815
425
Property For Sale
16/01/2026
Featured Listings
GHARGHUR - 10 room HOC set on 300sqm in UCA
For Sale
House of character3Gharghur
Mellieha Heights New Development, Ready Built, Sold Finished including bathrooms!!
For Sale
Apartment / Flat3Mellieha
FOR SALE 3-Bedroom Apartment - Xaghra, Gozo
For Sale
Apartment / Flat3Xaghra (Gozo)
For sale 2/3bdr Corner Apartment in Xlendi gozo near sea
For Sale
Apartment / Flat2Xlendi (Gozo)
