BURMARRAD - 4 th Floor Apartment -Over 290 sqm , - Semi Furnished ,
€ 735,000
Description
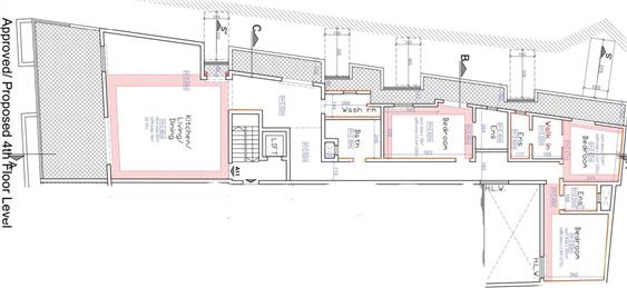
BURMARRAD - 4 th Floor Apartment
-Over 290 sqm ,
- Semi Furnished ,
This Property Consits,
Huge Open plan Kitchen, /Living,& Dinning area (over 75 sqm ) leading to a good size front terrance with views ,
3 double bedrooms ,all with unsiute ,
4 Balconys ,
Washroom ,
Study area ,
& the Main Bathroom.
Free hold 735k
Optinal 1 car Garage ,
For Viewing Call on 79888936 ( WhatsApp) avilable .
Visit and Like our Face Book Page , Living Spaces Sensara 1% .
-Over 290 sqm ,
- Semi Furnished ,
This Property Consits,
Huge Open plan Kitchen, /Living,& Dinning area (over 75 sqm ) leading to a good size front terrance with views ,
3 double bedrooms ,all with unsiute ,
4 Balconys ,
Washroom ,
Study area ,
& the Main Bathroom.
Free hold 735k
Optinal 1 car Garage ,
For Viewing Call on 79888936 ( WhatsApp) avilable .
Visit and Like our Face Book Page , Living Spaces Sensara 1% .
Other Details
Apartment / FlatRabat (Malta)Finished
3NoNo
Item Details
10009570
241
Property For Sale
12/01/2026
Featured Listings
MSIDA Corner Apartments - Sole Agency with Zanzi Homes - Ideal for first time buyers or as a rental...
For Sale
Apartment / Flat1Msida
Mellieha Heights New Development, Ready Built, Sold Finished including bathrooms!!
For Sale
Apartment / Flat3Mellieha
Farmhouse in St Paul's Bay
For Sale
Other4San Pawl il-Bahar
GHARGHUR - 10 room HOC set on 300sqm in UCA
For Sale
House of character3Gharghur
