Qrendi - Fully Furnished 3 Bedroom Apartment facing ODZ !!Bargain!!
€ 320,000
Description
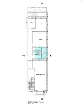
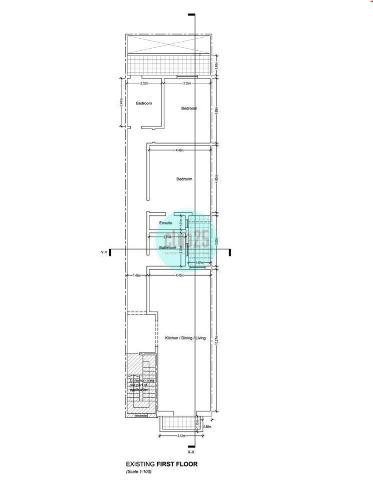
QRENDI - This fully furnished, ready-to-move-into 3-bedroom Apartment enjoys unobstructed country views facing ODZ, offering both comfort and tranquillity.
The open-plan kitchen, living, and dining area leads to a front balcony with beautiful views, perfect for relaxing or entertaining. The main bathroom includes a bathtub, while the main double bedroom has an ensuite and access to an internal yard. A second double bedroom and a third bedroom with two bunk beds open onto a back balcony.
The property includes 3 air-conditioning units, a dishwasher, a washing machine, insect screens, and soffit ceilings for added comfort.
Located on the first floor, no lift, in a quiet block of only 3 units set across 4 floors, this Apartment is freehold.
The open-plan kitchen, living, and dining area leads to a front balcony with beautiful views, perfect for relaxing or entertaining. The main bathroom includes a bathtub, while the main double bedroom has an ensuite and access to an internal yard. A second double bedroom and a third bedroom with two bunk beds open onto a back balcony.
The property includes 3 air-conditioning units, a dishwasher, a washing machine, insect screens, and soffit ceilings for added comfort.
Located on the first floor, no lift, in a quiet block of only 3 units set across 4 floors, this Apartment is freehold.
Other Details
Apartment / FlatQrendiFurnished
3NoNo
Item Details
9996015
40
Property For Sale
09/12/2025
Featured Listings
WANTED - GARAGE TARXIEN
For Sale
GarageTarxien
House of Character for Sale – Zurrieq
For Sale
House of character4Zurrieq
!!WANTED!! PLOTS / SITES & HOUSES TO DEVELOP. CASH IN HAND!!
For Sale
Terraced House3Zurrieq
Naxxar a Charming Townhouse with Possibility of garage
For Sale
House of character2Naxxar
